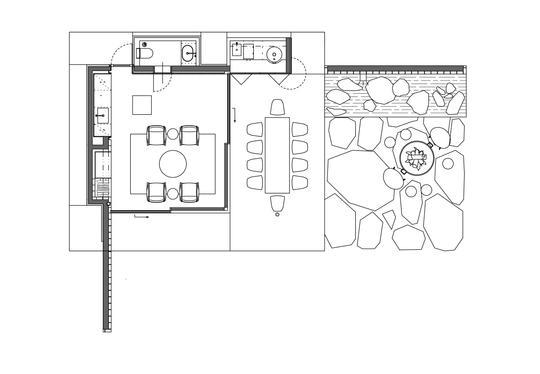
The design of the garden house is based on coexistence with the already completed family house. Part of the walls is also designed from facing bricks. The building has the character of a semi-open structure. The interior and exterior areas are covered by a single flat roof with a distinctive edge trim and an oak soffit.