Funkcionalistická vilová kolonie na jihovýchodní části ostrohu Baba v pražských Dejvicích byla vystavěna jako jedna ze šesti evropských kolonií moderního bydlení.

Stavba tohoto rodinného domu, vily, z roku 1939 podle projektu Dr.ing. Antonína Černého, který byl zároveň majitelem i stavitelem vily, je jednou z intaktních zachovaných vil v tomto území a je nyní součástí vyhlášené památkové zóny Baba ( 1933 ).

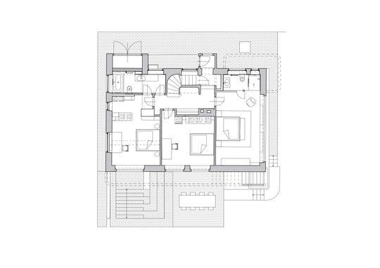
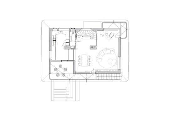
Celkový architektonický přístup se snaží ctít kvality a modernistický odkaz původního návrhu a dochovaného stavu. Rekonstrukce reaguje na současné požadavky rodinného bydlení ale zároveň je zaměřena na repase některých prvků, zejména ocelových oken.

Vila je nově doplněna cihlovým anglickým dvorkem zpřístupňujícím zahradu z úrovně suterenu, stejné cihly jsou použity na chodníčky a sokly.